ロゴ画像

03-6427-1827

受付時間 9:00 - 18:00

【名古屋市・庄内通駅徒歩3分】6坪・賃料7.7万円|飲食可×24時間利用可の小箱物件

情報更新日:2026年04月21日
【名古屋市・庄内通駅徒歩3分】6坪・賃料7.7万円|飲食可×24時間利用可の小箱物件
【名古屋市・庄内通駅徒歩3分】6坪・賃料7.7万円|飲食可×24時間利用可の小箱物件
【名古屋市・庄内通駅徒歩3分】6坪・賃料7.7万円|飲食可×24時間利用可の小箱物件
【名古屋市・庄内通駅徒歩3分】6坪・賃料7.7万円|飲食可×24時間利用可の小箱物件

物件概要

階建て

地上2階

階数/面積

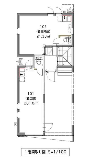
1階 / 約6.47坪 (21.38㎡)

構造

RC

建物名

(会員限定)

契約期間

普通借家 2年

権利金・礼金

1 ヶ月

物件の状態

居抜き

共益・管理費

5,500円

償却

0 ヶ月

更新料

0ヶ月

築年数

2年

取引業態

一般

アピールポイント

地下鉄鶴舞線「庄内通」駅3分SOHO・サロンに最適 飲⾷店可,24時間利⽤可,⼟曜⽇利⽤可,⼟⽇・祝⽇利⽤可,専有部分にトイレあり,プロパンガス,エアコン

特記事項・備考

飲⾷店舗については業種要相談 現在 絵本カフェ営業中 内覧を希望の場合は応相談 賃貸保証:加⼊要 ⽇本セーフティー/総賃料の100% 駐⾞場備考:近隣⽉ぎめ駐⾞場 (物件裏敷地)有 11,000円/⽉ 空き1台 利⽤駅1:名古屋市鶴舞線 庄内緑地公園 徒歩14分 利⽤駅2:名鉄⽝⼭線 中⼩⽥井 徒歩27分

地図・アクセス

詳しい場所はログイン後に表示されます

会員登録(無料)をすると、地図での正確な立地確認や、非公開物件の詳細情報をご覧いただけます。