【大阪府大阪市東成区】千日前線 新深江駅から徒歩2分/駅近/業種相談可能/室内備品あり/約28.13坪
☆お気に入り登録2025年10月30日
物件概要
所在
大阪府大阪市東成区...※詳細はログイン
(会員限定)
階建て
地上8階
階数/面積
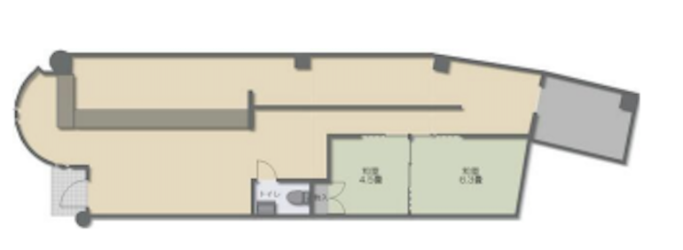
1階/ 約28.13坪 (92.99㎡)
構造
建物名
契約期間
普通借家 2 年
権利金・礼金
2 ヶ月
物件の状態
居抜き
共益・管理費
(税込)
0円
前テナントの
業態
居酒屋
償却
相談
更新料
相談
築年数
37年
取引業態
一般
アピール
ポイント
駅近 飲食店可
備考
室内改修工事に300万円掛けました 室内の備品関係全てお使いください。(残置物扱い) 業種相談します。 軽飲食希望・クリニック・介護関係事務所など。 お気軽にお問合せ下さい。 保険等:要2年50,000円 更新料:なし 賃料(月額支払額)の1か月分 利用駅1:近鉄難波・奈良線 今里 徒歩7分
この条件に似ている物件
- 
                                
              新深江駅から徒歩1分の超駅近!内装美麗な飲食相談可能の居抜き物件 賃料 310,200円 最寄駅 新深江駅(徒歩1分) 坪数 28.13坪(地上1階) 
- 
                                
              大阪メトロ各線緑橋駅から約120mの駅近!フリーレント1ヶ月の路面店舗居抜き物件 賃料 308,880円 最寄駅 緑橋駅(徒歩2分) 坪数 23.81坪(地上1階) 
- 
                                
              今里駅徒歩1分の路面飲食店舗居抜き!千日前通沿い、視認性あり! 賃料 291,500円 最寄駅 今里駅(徒歩1分) 坪数 16坪(地上1階) 
- 
                                
              【大阪市東成区】鶴橋駅徒歩2分/飲食店繁華街集客力◎/居抜き物件/15坪 賃料 484,000円 最寄駅 鶴橋駅(徒歩2分) 坪数 15坪(地上1-2階) 
- 
                                
              【大阪府大阪市東成区】近鉄奈良線 今里駅から徒歩2分/駅近/路面/24時間利用可/約8.98坪 賃料 103,455円 最寄駅 今里駅(徒歩2分) 坪数 8.98坪(地上1階) 
 
         
         
                                         
                                         
                             
                                 
          