【兵庫県神戸市長田区】JR神戸線 新長田駅から徒歩3分/軽飲食相談可/ビル内にも面した立地/美容室居抜き/約12.44坪
☆お気に入り登録2025年11月01日
JR神戸線 新長田駅 徒歩 3分
神戸市西神・山手線 新長田駅 徒歩 3分
賃料(税込):200,200円/坪@16,093円
兵庫県神戸市長田区...※詳細はログイン(会員限定)
階数/面積
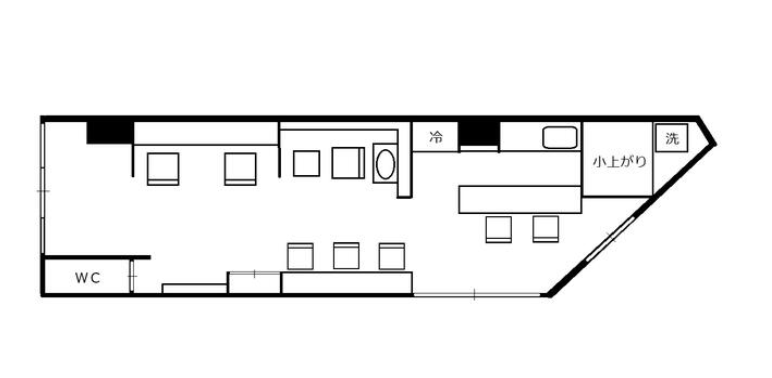
1階/約12.44 坪(41.12㎡)
敷金/保証金
220000 円
造作代金(税込)
相談
現業態
美容室・理容室
アピールポイント
飲⾷店可 ⼟曜⽇利⽤可 ⼟⽇・祝⽇利⽤可 エレベーター
物件概要
所在
兵庫県神戸市長田区...※詳細はログイン
(会員限定)
階建て
地上16階 地下1階
階数/面積
1階/ 約12.44坪 (41.12㎡)
構造
建物名
契約期間
普通借家 2 年
権利金・礼金
484,000 ヶ月
物件の状態
居抜き
共益・管理費
(税込)
43,809円
前テナントの
業態
美容室・理容室
償却
相談
更新料
相談
築年数
18年
取引業態
一般
アピール
ポイント
飲⾷店可 ⼟曜⽇利⽤可 ⼟⽇・祝⽇利⽤可 エレベーター
備考
美容室の居抜き店舗 設備⼀式利⽤可能 アーケード側 ビル内にも⾯した⽴地。 軽飲⾷相談可(重飲⾷不可) 店舗会加⼊要 ⼊会⾦別途 店舗会費9,500円/⽉。 営業中につき引渡⽇はご相談。 保険等:要2年 賃貸保証:加⼊要 ㈱クレデンス、初回100%、更新料年2万円 利⽤駅1:神⼾市営地下鉄海岸線 新⻑⽥ 徒歩3分
この条件に似ている物件
-
【兵庫県神戸市長田区】神戸高速東西線 高速長田駅から徒歩2分/飲食店可/シャッター雨戸/エレベーター2基以上/約18.61坪
賃料
269,830円
最寄駅
高速長田駅(徒歩2分)
坪数
18.61坪(地下階)
-
【兵庫県神戸市長田区】神戸高速東西線 高速長田駅から徒歩2分/前職種洋食屋/スケルトン/シャッター雨戸/約18.61坪
賃料
269,830円
最寄駅
高速長田駅(徒歩2分)
坪数
18.61坪(地下階)
-
【兵庫県神戸市長田区】JR神戸線 鷹取駅から徒歩1分/居酒屋居抜き/24時間利用可/動力あり/約28.34坪
賃料
231,000円
最寄駅
鷹取駅(徒歩1分)
坪数
28.34坪(地上2階)
-
新長田駅徒歩2分!駅近・商業地域で集客見込◎飲食店物件
賃料
888,261円
最寄駅
新長田駅(徒歩2分)
坪数
73.2坪(地上1階)
-
【兵庫県神戸市長田区】JR神戸線 新長田駅から徒歩2分/飲食店可/1フロア1テナント/スケルトン/約73.2坪
賃料
888,261円
最寄駅
新長田駅(徒歩2分)
坪数
73.2坪(地上1階)
-
新長田駅から徒歩12分!他路線からもアクセス可能なフィリピンパブ居抜き物件
賃料
302,500円
最寄駅
新長田駅(徒歩12分)
坪数
94.07坪(地上2階)