御堂筋線 本町駅から徒歩5分!駅近の路面店1階とB1階店舗!飲食店可能なスケルトン物件
☆お気に入り登録2025年09月30日
大阪御堂筋線 本町駅 徒歩 5分
大阪御堂筋線 心斎橋駅 徒歩 6分
賃料(税込):1,524,600円/坪@24,115円
大阪府大阪市中央区...※詳細はログイン(会員限定)
階数/面積
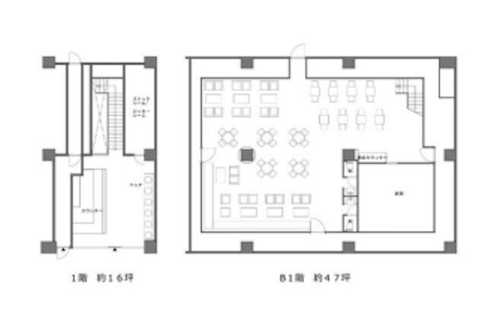
1階/約63.22 坪(209㎡)
敷金/保証金
12 ヶ月
造作代金(税込)
相談
現業態
その他(テイクアウト等)
アピールポイント
飲食店可 検査済書なし スケルトン
物件概要
所在
大阪府大阪市中央区...※詳細はログイン
(会員限定)
階建て
地上8階 地下2階
階数/面積
1階/ 約63.22坪 (209㎡)
構造
建物名
契約期間
普通借家 2 年
権利金・礼金
0 ヶ月
物件の状態
スケルトン
共益・管理費
(税込)
相談
前テナントの
業態
その他(テイクアウト等)
償却
相談
更新料
相談
築年数
54年
取引業態
一般
アピール
ポイント
飲食店可 検査済書なし スケルトン
備考
現在駐車場区画の改装工事を計画中。 テナント様決まり次第工事着工予定。 1階約16坪、地下1階約47坪(概算につき変更あり) 条件等も要相談 内階段、給排水設備、ガス設備、電気設備はA工事にて施工予定。 検査済証無し 保険等:要 利用駅2:大阪メトロ長堀緑地鶴見線 心斎橋駅 徒歩9分
この条件に似ている物件
-
本町駅徒歩5分!人通りが多く視認性良好◎多種多様対応可能スケルトン物件
賃料
1,386,000円
最寄駅
本町駅(徒歩5分)
坪数
63.22坪(地上1階)
-
【大阪市中央区】心斎橋徒歩5分/間口広め好立地物件/前業態焼肉/40坪
賃料
641,300円
最寄駅
心斎橋駅(徒歩5分)
坪数
40坪(地上1-3階)
-
堺筋本町駅徒歩1分 駅至近でアクセス良好!商業ビル内店舗
賃料
228,459円
最寄駅
堺筋本町駅(徒歩1分)
坪数
18.06坪(地上2階)
-
【大阪府大阪市中央区】御堂筋線 心斎橋駅から徒歩5分/飲食店可/24時間利用可/非接触型ICカードキー/約17.96坪
賃料
387,200円
最寄駅
心斎橋駅(徒歩5分)
坪数
17.96坪(地上2階)
-
心斎橋駅から徒歩2分!駅近人気エリアの好立地にある中華料理店居抜き物件
賃料
484,000円
最寄駅
心斎橋駅(徒歩2分)
坪数
16.64坪(地上1階)
-
心斎橋駅徒歩3分!低予算でスタートできます☆24時間営業可能BAR居抜き物件
賃料
165,000円
最寄駅
心斎橋駅(徒歩3分)
坪数
16.5坪(地上5階)
-
近鉄日本橋駅から徒歩3分!道頓堀からもすぐの繁華街にあるスケルトン物件
賃料
484,000円
最寄駅
近鉄日本橋駅(徒歩3分)
坪数
16坪(地上3階)
-
近鉄日本橋駅徒歩3分!人通り多い賑やかな繁華街☆多種多様対応可能スケルトン物件
賃料
440,000円
最寄駅
近鉄日本橋駅(徒歩3分)
坪数
16坪(地上3階)
-
⾕町六丁⽬駅徒歩4分 駅近で周辺施設充実◎1階路面喫茶店居抜き物件
賃料
280,000円
最寄駅
谷町六丁目駅(徒歩4分)
坪数
15.33坪(地上1階)
-
【大阪府大阪市中央区】心斎橋駅徒歩5分!人気エリア☆業種相談可能です
賃料
165,000円
最寄駅
心斎橋駅(徒歩5分)
坪数
14.63坪(地上3階)
-
各線心斎橋駅から徒歩5分、なんば駅からもアクセス可能!元寿司店の居抜き物件
賃料
462,000円
最寄駅
心斎橋駅(徒歩5分)
坪数
12坪(地上1階)
-
堺筋本町エリア、ランチ需要の高いオフィス街立地!路面飲食居抜き!
賃料
181,500円
最寄駅
堺筋本町駅(徒歩4分)
坪数
10坪(地上1階)
-
近鉄⽇本橋駅徒歩4分 24時間利用可能!周辺お店多数ありで集客見込◎居抜き物件
賃料
178,200円
最寄駅
近鉄日本橋駅(徒歩4分)
坪数
9坪(地下階)
-
人気のなんば 道頓堀エリア!インバウンド需要も強い好立地なバー居抜き!
賃料
154,000円
最寄駅
なんば駅(徒歩5分)
坪数
7.5坪(地下階)
-
日本橋駅徒歩5分!人通り多いエリア☆業種相談可能物件
賃料
580,800円
最寄駅
日本橋駅(徒歩5分)
坪数
7.27坪(地上1階)
-
長堀橋駅から徒歩2分、心斎橋駅からも徒歩3分と好立地!重飲食も相談可能なビル最上階のバー居抜き物件
賃料
220,000円
最寄駅
長堀橋駅(徒歩2分)
坪数
5坪(地上5階)
-
心斎橋駅徒歩3分!駅近・24時間利用可能☆内装美麗・最上階BAR居抜き物件
賃料
220,000円
最寄駅
心斎橋駅(徒歩3分)
坪数
4.99坪(地上5階)
-
堺筋本町駅徒歩6分!好立地◎24時間利用可能スケルトン物件
賃料
2,420,000円
最寄駅
堺筋本町駅(徒歩6分)
坪数
127.24坪(地下階)
-
なんば駅徒歩3分 商店街内で集客力抜群!人気エリアの希少1~4階路面店舗
賃料
5,500,000円
最寄駅
なんば駅(徒歩3分)
坪数
241.27坪(地上1,2,3,4階)