ロゴ画像

03-6427-1827

受付時間 9:00 - 18:00

【神戸市・大丸前駅徒歩3分】観光エリアの好立地/18坪・飲食店可の居抜き物件/土日祝営業可・即出店向き

情報更新日:2026年04月07日
【神戸市・大丸前駅徒歩3分】観光エリアの好立地/18坪・飲食店可の居抜き物件/土日祝営業可・即出店向き
【神戸市・大丸前駅徒歩3分】観光エリアの好立地/18坪・飲食店可の居抜き物件/土日祝営業可・即出店向き
【神戸市・大丸前駅徒歩3分】観光エリアの好立地/18坪・飲食店可の居抜き物件/土日祝営業可・即出店向き
【神戸市・大丸前駅徒歩3分】観光エリアの好立地/18坪・飲食店可の居抜き物件/土日祝営業可・即出店向き

物件概要

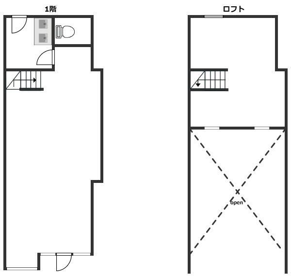
階数/面積

1階 / 約18.06坪 (59.7㎡)

構造

木造

建物名

(会員限定)

契約期間

普通借家 2年

権利金・礼金

3 ヶ月

物件の状態

居抜き

共益・管理費

0円

償却

0 ヶ月

更新料

0ヶ月

築年数

79年

取引業態

一般

アピールポイント

飲⾷店可,居抜き,⼟⽇・祝⽇利⽤可,エアコン2台以上,電動シャッター

特記事項・備考

※建物⾯積:1階(36.69㎡) ロフト(約15㎡) 三宮本通商店街に⾯した⽴地/元町駅徒歩3分 三宮本通商店街振興組合出資⾦(退去時返⾦):20,000円 三宮本通商店街振興組合費:20,350円/⽉ 保険等:要 2年 更新料:なし 賃貸保証:加⼊要 4Cʼsまたは⽇本セーフティー 利⽤駅1:JR東海道本線 元町 徒歩6分 利⽤駅2:阪急電鉄神⼾線 神⼾三宮徒歩6分

地図・アクセス

詳しい場所はログイン後に表示されます

会員登録(無料)をすると、地図での正確な立地確認や、非公開物件の詳細情報をご覧いただけます。