ロゴ画像

03-6427-1827

受付時間 9:00 - 18:00

【⼤阪府茨⽊市・総持寺駅徒歩4】一棟貸し×重飲食OK!即営業可の居抜き物件

情報更新日:2026年04月06日
【⼤阪府茨⽊市・総持寺駅徒歩4】一棟貸し×重飲食OK!即営業可の居抜き物件
【⼤阪府茨⽊市・総持寺駅徒歩4】一棟貸し×重飲食OK!即営業可の居抜き物件
【⼤阪府茨⽊市・総持寺駅徒歩4】一棟貸し×重飲食OK!即営業可の居抜き物件
【⼤阪府茨⽊市・総持寺駅徒歩4】一棟貸し×重飲食OK!即営業可の居抜き物件

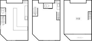
物件概要

階建て

地上3階

階数/面積

1.2.3階 / 約22.8坪 (75.37㎡)

構造

軽量鉄⾻造

建物名

(会員限定)

契約期間

普通借家 2年

権利金・礼金

605,000 円

物件の状態

スケルトン

共益・管理費

55,000円

前業態

居酒屋

償却

0 ヶ月

更新料

0ヶ月

築年数

42年

取引業態

一般

最寄り駅

アピールポイント

飲⾷店可,居抜き,トイレ2ヶ所,収納スペース,冷蔵庫,給湯,都市ガス,エアコン2台以上

特記事項・備考

■造作譲渡⾦100万(税別)応相談、2年以上で返却 ■保証会社、借家⼈賠償保険加⼊必須 ※造作譲渡:100.00万円 利⽤駅1:JR東海道本線 JR総持寺 徒歩10分 利⽤駅2:阪急電鉄京都線 富⽥ 徒歩17分

地図・アクセス

詳しい場所はログイン後に表示されます

会員登録(無料)をすると、地図での正確な立地確認や、非公開物件の詳細情報をご覧いただけます。