【江戸川区・西葛西駅徒歩4分】飲食店可/34.69坪・1フロア1テナント/フリーレント1ヶ月
賃料(税込)
693,000 円
坪単価 19,976円
面積/坪数
34.69 坪
114.68㎡
- 階層
- 地上1階
- 現業態
- カフェ・カフェバー
- 造作譲渡金
- 無償
- 保証金/敷金
- 0 ヶ月
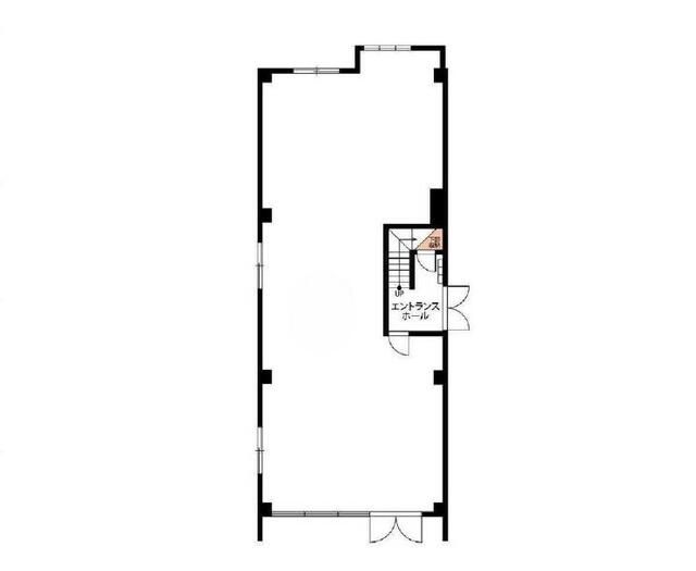
物件概要
所在
東京都江戸川区... 詳細はログイン
階建て
地上5階
階数/面積
1階 / 約34.69坪 (114.68㎡)
構造
鉄⾻造
建物名
(会員限定)
契約期間
普通借家 3年
権利金・礼金
0 ヶ月
物件の状態
スケルトン
共益・管理費
0円
前業態
カフェ・カフェバー
償却
0 ヶ月
更新料
1ヶ月
築年数
41年
取引業態
一般
最寄り駅
都営新宿線 船堀駅 徒歩30分
東京メトロ東西線 南砂町駅 徒歩40分
アピールポイント
特記事項・備考
地図・アクセス
この条件に似ている物件
-
【平井 居抜き物件】駅徒歩1分/中華料理店居抜き約19坪/駅前ビル2階/居酒屋・中華・エスニック向け飲食店物件(江戸川区)
賃料
330,000円
最寄駅
平井駅(徒歩1分)
坪数
19.04坪(地上2階)
-
【江戸川区 居抜き物件】葛西駅徒歩1分/中華居酒屋居抜き16坪/駅前角地・看板多数で視認性◎/葛西飲食店居抜き/飲食店開業向け貸店舗
賃料
330,000円
最寄駅
葛西駅(徒歩1分)
坪数
16.6坪(地上2階)
-
【江戸川区】新小岩徒歩7分/新小岩ルミエール商店街通り沿い/ベトナム料理店/約13.73坪
賃料
275,000円
最寄駅
新小岩駅(徒歩7分)
坪数
13.73坪(地上1階)
-
【江戸川区】小岩駅徒歩3分/24時間利用可/角地/好立地/視認性良好/1階路面店
賃料
982,608円
最寄駅
小岩駅(徒歩3分)
坪数
55.83坪(地上1階)
-
葛西駅徒歩11分 内装美麗な整体院の居抜き物件!
賃料
198,000円
最寄駅
葛西駅(徒歩11分)
坪数
9.8坪(地上1階)
-
【江戸川区】平井駅徒歩2分/駅至近/内装美麗/ショットバー居抜き物件/約9.68坪
賃料
154,000円
最寄駅
平井駅(徒歩2分)
坪数
9.68坪(地上2階)
-
【葛西駅 徒歩5分 居抜き店舗】1階路面/家賃14.3万円・約9坪|江戸川区飲食店開業向け
賃料
143,000円
最寄駅
葛西駅(徒歩5分)
坪数
9坪(地上1階)