大鳥居駅徒歩10分!造作譲渡無償◎居酒屋に最適・カウンター付き居抜き物件
☆お気に入り登録2025年09月12日
京浜急行空港線 大鳥居駅 徒歩 10分
京浜急行空港線 糀谷駅 徒歩 18分
賃料(税込):253,000円/坪@11,350円
東京都大田区...※詳細はログイン(会員限定)
階数/面積
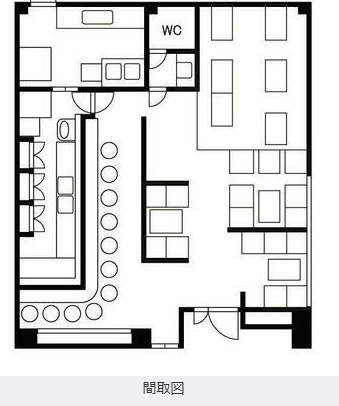
1階/約22.29 坪(73.69㎡)
敷金/保証金
3 ヶ月
造作代金(税込)
無償
現業態
ダイニングバー
アピールポイント
大鳥居駅徒歩10分!造作譲渡無償、路面店、居抜き、飲食店可
物件概要
所在
東京都大田区...※詳細はログイン
(会員限定)
階建て
地上3階
階数/面積
1階/ 約22.29坪 (73.69㎡)
構造
鉄⾻造
建物名
契約期間
普通借家 3 年
権利金・礼金
1 ヶ月
物件の状態
居抜き
共益・管理費
(税込)
0円
前テナントの
業態
ダイニングバー
償却
1 ヶ月
更新料
1 ヶ月
築年数
44年
取引業態
一般
アピール
ポイント
大鳥居駅徒歩10分!造作譲渡無償、路面店、居抜き、飲食店可
備考
賃貸保証等:加入要(契約時:賃料の100%、月額保証料:0.8%) ご契約金のクレジット決済可能です。業種や業態ご相談下さい。 当物件の初期費用が知りたい、引越に際して分からない事があればお気軽にお問い合わせくださいませ。 地域情報など、お部屋の資料では分からない事も丁寧にご説明させていただきます。
この条件に似ている物件
-
蒲田駅徒歩1分!駅目の前の好立地☆角部屋物件
賃料
935,000円
最寄駅
蒲田駅(徒歩1分)
坪数
22.8坪(地上3階)
-
糀谷駅徒歩4分 視認性◎1階路面の総菜・弁当居抜き店舗!
賃料
280,500円
最寄駅
糀谷駅(徒歩4分)
坪数
20.99坪(地上1階)
-
蓮沼駅徒歩1分!駅目の前の好立地◎喫茶店に最適居抜き物件
賃料
440,000円
最寄駅
蓮沼駅(徒歩1分)
坪数
19.96坪(地上1階)
-
蒲田駅徒歩2分 内装美麗な居酒屋居抜き店舗!
賃料
264,000円
最寄駅
蒲田駅(徒歩2分)
坪数
19.57坪(地上6階)
-
【大田区】蒲田駅徒歩1分/飲食店が多く入居/角地で視認性◎/スケルトン/19.39坪
賃料
429,000円
最寄駅
蒲田駅(徒歩1分)
坪数
19.39坪(地上6階)
-
【大田区】蒲田駅徒歩1分/駅近ダーツバー/居抜き物件/19坪
賃料
374,000円
最寄駅
蒲田駅(徒歩1分)
坪数
19坪(地下階)
-
【大田区】蒲田駅徒歩1分/駅至近/飲食店及び物販店集合ビル/ランチ・ディナー集客力◎/16坪
賃料
418,000円
最寄駅
蒲田駅(徒歩1分)
坪数
16坪(地上5階)
-
【大田区】蒲田駅徒歩1分/即営業可能/居酒屋居抜き物件/約29.03坪
賃料
583,000円
最寄駅
蒲田駅(徒歩1分)
坪数
29.03坪(地上2階)
-
馬込駅徒歩5分 環七通り沿いのラーメン店居抜き物件
賃料
198,000円
最寄駅
馬込駅(徒歩5分)
坪数
15.51坪(地上1階)
-
武蔵新田駅徒歩2分!袖看板無料☆人通りが多い商店街沿い1階路面店舗
賃料
327,800円
最寄駅
武蔵新田駅(徒歩2分)
坪数
14.86坪(地上1階)
-
蓮沼駅徒歩1分!駅近・角地の好立地☆飲食店も可能スケルトン物件
賃料
286,000円
最寄駅
蓮沼駅(徒歩1分)
坪数
12.99坪(地上1階)
-
大森町徒歩10分!内装美麗◎営業時間縛り無し焼き肉屋居抜き物件
賃料
209,000円
最寄駅
大森町駅(徒歩10分)
坪数
11.65坪(地上1階)
-
馬込駅徒歩5分 1階路面の居酒屋居抜き店舗!
賃料
187,000円
最寄駅
馬込駅(徒歩5分)
坪数
11.64坪(地上1階)
-
京浜急行空港線糀谷駅徒歩3分 駅至近の角地で視認性抜群◎24時間営業可能居抜き物件
賃料
253,000円
最寄駅
糀谷駅(徒歩3分)
坪数
10坪(地上1階)
-
【値下げ】沼部駅徒歩1分 駅出てすぐの重飲食可能物件!【物件取得費300万円以下で取得可能】
賃料
220,000円
最寄駅
沼部駅(徒歩1分)
坪数
9.96坪(地上1階)
-
平和島駅徒歩2分 1階路面のうどん店居抜き店舗!
賃料
253,000円
最寄駅
平和島駅(徒歩2分)
坪数
9.37坪(地上1階)
-
蒲田駅徒歩6分 造作譲渡代無償のスナック居抜き店舗!
賃料
180,000円
最寄駅
蒲田駅(徒歩6分)
坪数
8.4坪(地下階)
-
⽮⼝渡駅徒歩6分!地域密着型スナック・BAR向き居抜き物件
賃料
137,500円
最寄駅
矢口渡駅(徒歩6分)
坪数
7.5坪(地上1階)
-
蒲田駅徒歩5分!重飲食も可能◎中央通り沿いスナック居抜き物件
賃料
266,200円
最寄駅
蒲田駅(徒歩5分)
坪数
6坪(地上1階)
-
【大田区蒲田】駅3分のバー居抜き|2階約5坪/カラオケ可/風営可/深夜営業可
賃料
231,000円
最寄駅
蒲田駅(徒歩3分)
坪数
5坪(地上2階)
-
池上駅 徒歩4分!駅近・商業ビル1階で視認性抜群スケルトン物件
賃料
930,600円
最寄駅
池上駅(徒歩4分)
坪数
42.3坪(地上1階)
【大田区駅一覧】
京急蒲田駅 / 蒲田駅 / 大森駅 / 糀谷駅 / 羽田空港第1ターミナル駅 / 羽田空港第3ターミナル駅 / 羽田空港第1・第2ターミナル駅 / 羽田空港第2ターミナル駅 / 天空橋駅 / 池上駅 / 武蔵新田駅 / 流通センター駅 / 大森町駅 / 大鳥居駅 / 馬込駅 / 穴守稲荷駅 / 平和島駅 / 長原駅 / 下丸子駅 / 千鳥町駅 / 多摩川駅 / 田園調布駅 / 矢口渡駅 / 大岡山駅 / 西馬込駅 / 羽田空港第3ターミナル駅 / 鵜の木駅 / 沼部駅 / 久が原駅 / 石川台駅 / 梅屋敷駅 / 洗足池駅 / 御嶽山駅 / 新整備場駅 / 六郷土手駅 / 蓮沼駅 / 昭和島駅 / 雪が谷大塚駅 / 整備場駅 / 北千束駅
【大田区エリアの特徴】
大田区は、東京湾に面したエリアで、多くの観光地や住宅街が広がる地域です。
蒲田、大森、羽田、田園調布、雪谷大塚などのエリアには、商店街や飲食店が立ち並び、地域の活気を支えています。
また、羽田空港が位置しているため、国内外からのアクセスが非常に良く、観光客やビジネスマンが多く訪れるエリアでもあります。
大田区には、地元住民に愛される店舗が多くあり、特に蒲田や大森は多彩な飲食店やショッピングスポットが集まっています。
高級住宅地として知られる田園調布や、落ち着いた雰囲気の雪谷大塚など、それぞれ異なる魅力を持つエリアが点在しています。
大田区を散策するだけでも、東京の多様な文化とライフスタイルを感じることができます。各エリアの特徴を生かした店舗運営が成功の鍵となります。
【大田区に出店・店舗経営】
大田区では、多くの居抜き物件が出回っています。
探せば気に入った店舗物件が見つかるはずです。
競合の多いエリアですので、出店後の資金的な余裕を確保することが重要です。
飲食店なら(カフェ、ラーメン、居酒屋、和食、寿司、焼き鳥、イタリアン、フレンチ、洋食、多国籍料理など)、多様な業態に対応した居抜き物件が豊富です。
居抜き物件では、厨房機器、グリストラップ、ダクト、テーブルや椅子、カウンター、個室、レジ、エアコンなどがそのまま利用できるため、初期投資を抑えることができます。
ビューティー系(美容室、エステ、ネイルサロン)、整体、マッサージ、テイクアウト、物販(アパレル、雑貨屋、ギャラリー、コンビニ)の居抜き物件では、シャンプー台、鏡、リクライニングチェア、看板などの設備もそのまま利用できるため、大変お得です。
【大田区で居抜き物件や店舗を探す】
大田区内では、蒲田、大森、田園調布、雪谷大塚、羽田などが人気のエリアです。
主要な通りは国道15号(第一京浜)、国道1号(第二京浜)、環八通り、池上通り、産業道路などで、それぞれ独特の雰囲気と客層があります。
出店を計画する際には、周辺の店舗や客層の調査(マーケティング)が重要です。
昼夜営業の店舗では、それぞれの時間帯での調査をおすすめします。
大田区で居抜き物件や店舗物件をお探しなら、「居抜きの神様」にお任せください!賃料、坪数、現況、最寄り駅、徒歩分数などの検索が可能です。
出店をご検討中のお客様は、ぜひご利用ください。
【大田区のおすすめ物件紹介コラム】
大森駅の焼肉居抜き物件|優れた住環境と文化が調和する街の周辺情報
大森駅の和食料理居抜き物件|物件周辺の人通りや飲食店情報
糀谷駅のテイクアウト店居抜き店舗|ファミリー層に人気な街の周辺情報
蒲田駅の居酒屋居抜き店舗|物件周辺の飲食店情報
蒲田駅のスナック居抜き店舗|物件周辺の特徴や飲食店情報
馬込駅のラーメン店居抜き店舗|物件周辺の飲食店情報
平和島駅のうどん店居抜き店舗|物件周辺の飲食店情報
蒲田駅の居酒屋居抜き店舗|大田区の繁華街の周辺情報
糀谷駅の中華料理店居抜き店舗|物件周辺の飲食店情報
武蔵新田駅のイタリアン居抜き店舗|地元住民でにぎわう街の特徴
池上駅のラーメン居抜き店舗|門前町として栄えた情緒豊かな街の周辺情報
平和島駅の居酒屋居抜き店舗|物件周辺の飲食店情報
穴守稲荷駅の居酒屋居抜き店舗|空港に最も近い住宅街の周辺情報
【大田区の主要駅の賃料相場】
・蒲田駅の平均賃料相場年別推移(2021年〜2024年)
| 2024年 | 20,230円 |
| 2023年 | 20,701円 |
| 2022年 | 21,796円 |
| 2021年 | 21,013円 |
参照:飲食店ドットコム「蒲田駅の賃料相場情報」(2024年5月現在)
大田区の周辺情報
大田区ってどんな街?
大田区は、羽田空港があり、多くの観光客やビジネスマンが訪れるエリアでもあります。
また、住宅地やオフィスビルが多く立ち並び、幅広い年齢層の人々が生活しています。
このような背景から、大田区では、地元の食材を活用した創作料理や、国際的な料理を提供するレストランが人気を集めています。
また、カジュアルな飲食店やファーストフード店も需要があります。
【大田区の主要な駅の情報】
●蒲田駅
蒲田周辺には1904年開業の「JR線の蒲田駅」、1922年開業の「東急線の蒲田駅」の他、1901年開業の「京浜急行線の京急蒲田駅」が存在します。蒲田駅には駅直結の百貨店「グランデュオ蒲田」「東急プラザ蒲田」があり、駅利用者や地元住民で常ににぎわっています。東口、西口それぞれに昔ながらの商店街もあり、商店街らしい八百屋や果物屋といった個人経営の店舗から、牛丼屋やコンビニなどのチェーン店まで多種多様な店舗が並んでいます。
京急蒲田駅の西口には、駅直結の複合商業施設「あすとウィズ」があり、3階まではスーパーやドラッグストアなどの入った商業施設、4階~20階までは集合住宅となっています。さらに西口駅前にはアーケード付きの昔ながらの商店街「あすと商店街」があり、買い物客はもちろん蒲田駅までの導線として多くの人に利用されています。
・蒲田駅の乗降客数
| JR京浜東北線 | 113,646人 |
|
東急線 (池上線・東急多摩川線) |
137,178人 |
| 京浜急行 | 54,259人 |
参照:JR東日本「各駅の乗車人員 2022年度」 東急電鉄「2022年度乗降人員」 京浜急行「駅別1日平均乗降人員」
・蒲田駅周辺の業態別飲食店数
| 和食 | 404件 |
| 洋食・西洋料理 | 126件 |
| 中華 | 84件 |
| アジア・エスニック | 75件 |
| カレー | 41件 |
| 焼き肉・ホルモン | 64件 |
| 居酒屋 | 464件 |
| ラーメン | 77件 |
| カフェ・喫茶店 | 69件 |
| バー | 134件 |
利用者の多い駅であることから飲食需要が高く、さまざまなジャンルの飲食店が軒を連ねています。特に和食、居酒屋の数が多いエリアです。
・蒲田駅の平均賃料相場年別推移(2021年〜2024年)
| 2024年 | 20,230円 |
| 2023年 | 20,701円 |
| 2022年 | 21,796円 |
| 2021年 | 21,013円 |
参照:飲食店ドットコム「蒲田駅の賃料相場情報」(2024年5月現在)
*蒲田駅の詳細な街レポはこちら